Reveal Projects
group
A property development and surveying company
In the Works
A few of our current projects being delivered
Current Pojects
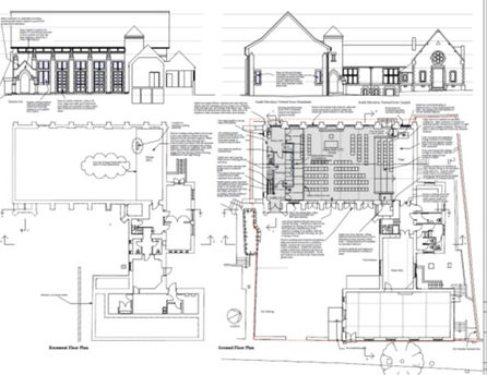
Spurgeon’s College, South Norwood Hills, London SE25 – 2018 to Present
Project Lead, DM & PM
GDV £85.0m
Regeneration and redevelopment. The vision for the project incorporates retention and refinement of the original 1890s locally listed college building, the demolition of later additions, provision of c4,500sqm of new and 1,000sqm refurbished education and conferencing facilities, improved amenity woodland, and a facilitating residential development of c140 self-contained dwellings. A Planning Application is being prepared for submission in Q3 2023.
Hook Lane, Hadleigh
Project Lead, DM & PM, and Participants
GDV £145.0m
25 Ha strategic greenfield site, planning promotion and a planning application for c280 new aspirational homes and new sports and community facilities by Ballymore with Landowner.
The projects vision is: to complete and enhance the outstanding character of Hadleigh through the creation of a new area of sport, amenity and living, in a generously landscaped setting through development of new homes for the people of Hadleigh, their children and those who aspire to join the Hadleigh Community. This will be achieved through outstanding master planning, exemplar architectural and technical detailing, forward thinking environmental performance standards, and secure arrangements for the perpetual care and maintenance of the place and facilities which we create.
Kingsley Hall Church & Community Centre, Parsloes Avenue, Dagenham – 2016 to Present
Developer, DM & PM
GDV £10.0m
Redevelopment part of the Kingsley Hall Church and Community Centre site to provide enabling dunsing for a new church, refurbished ancillary buildings and expanded mission. Outline planning permission was granted for comprehensive enabling development of 36 No. 1, 2,and 3 bedroom units all affordable housing. Consented in December 2022 to Shian HA and L & Q. Start on site Q2 2022.
Horfield Baptist Church, Gloucester Road, Horfield Bristol - 2021 to date
Asset stewardly advice, Process, & Project Management Consultant Advisory Services
Produced a strategy, concept plans and financial summaries that defined a deliverable, costed and valued strategy in conjunction with missional considerations, following (Spatial Perceptions CBS) worth.
Investigations, consultations and reporting to Members of the church culminating in a recommendation to swap their Church for an Anglican Church to preserve the body of Horfield Baptist Church and facilitate a sustainable future for HBC Members and their Mission and simultaneously facilitate the missional desires of the Anglican Church. We implemented and delivered the strategy for HBC including addressing all Property Charity and corporate matters.






